3-izbový byt na predaj v Starom Meste, Bratislava
Realitná kancelária PrimeReality ponúka na predaj veľmi pekný, slnečný 3i byt orientovaný na južnú stranu, kompletne dizajnovo zariadený, po kompletnej rekonštrukcii navrhnutej architektom, s klimatizáciami, vonkajšími žalúziami, drevenými parketami, samostatnou komorou v blízkosti Slovenského rozhlasu, centra na Mýtnej ulici v mestskej časti Staré Mesto.
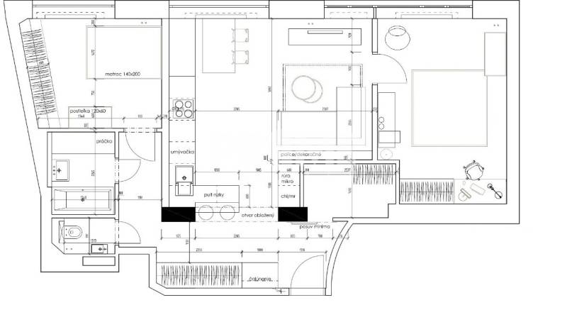
Podlahová plocha bytu predstavuje 78 m2. Byt sa nachádza na 1. poschodí ( 2 nadzemné ) v 3. poschodovom tehlovom bytovom dome.
Výhody bytu:
- tehlový bytový dom z roku 1944
- slnečný, orientovaný na južnú stranu
- kompletná rekonštrukcia bytu z roku 2016 navrhnutá architektom ( nové elektrické rozvody, rozvody vody, odpady, drevená podlaha, dlažba, obklad, sanita, maľovka, stierky, interiérové a bezpečnostné dvere, vonkajšie žalúzie, klimatizácie )
- rekonštrukcia bytového domu ( nová strecha, spoločné priestory, elektroinštalácia )
- kompletne štýlovo zariadený s modernou kuchynskou linkou na mieru so zabudovanými spotrebičmi ( indukčná varná doska, elektrická rúra na pečenie, mikrovlnná rúra, umývačka riadu, digestor) a nábytkom na mieru
- klimatizácia v obývačke a v spálni, vonkajšie žalúzie vo všetkých izbách
- samostatná komora , zvýšené stropy
- vlastná kotolňa
- výborná dispozícia
- primerané mesačné náklady 250 euro + elektrika
- internet a TV ( Antik )
- výborná lokalita
- veľmi milí a príjemný susedia, 4 byty na chodbe
- spoločenstvo vlastníkov bytov
- možnosť prenájmu garážového parkovacieho miesta hneď oproti bytového domu
- výborná občianska vybavenosť
- ideálne miesto pre život v mestskom prostredí s maximálnym komfortom
- spĺňa podmienky náročného klienta
- vhodný na rodinné bývanie ale aj ako investícia ( prenájom )
Dispozícia:
Byt pozostáva zo vstupnej chodby so šatníkovou skriňou na mieru a komorou, obývačky s kuchyňou, spálne so šatníkovou skriňou na mieru, detskej izby/pracovne, kúpeľne s vaňou a toalety.
Stav:
Byt sa predáva kompletne štýlovo zariadený s kuchynskou linkou na mieru a taktiež s kompletným nábytkom.
Lokalita:
Výborná lokalita na Mýtnej ulici vám ponúka ideálnu kombináciu mestského života a pohodlia, keďže sa nachádza v bezprostrednej blízkosti centra mesta, Slovenského rozhlasu a polikliniky Mýtna. Táto strategická poloha vám zabezpečuje kompletné občianske vybavenie v dosahu niekoľkých krokov, vrátane širokej ponuky kaviarní, reštaurácií a barov pre váš spoločenský život, kvalitných škôl a škôlok pre rodiny s deťmi, a perfektné dopravné spojenie s mestskou hromadnou dopravou, ktorá má zastávku priamo pred domom. Centrum mesta dosiahnete príjemnou sedem minútovou prechádzkou, zatiaľ čo výborné napojenie na mestský obchvat vám umožní rýchly a pohodlný prístup do všetkých častí mesta aj mimo neho, čo robí z tejto lokality skutočne ideálne miesto pre život v mestskom prostredí s maximálnym komfortom a dostupnosťou všetkých služieb.
Veľmi príjemné a pekné bývanie treba vidieť.
Kompletná cena nehnuteľnosti predstavuje 379 000 euro.
Kontakt: 0948 902 505
Email: kiss@primereality.sk
Podrobné informácie
Poloha nehnuteľnosti na mape
Mýtna, Bratislava - Staré Mesto, Slovensko

